883 Mountain View DriveStone Mountain, GA 30083
Due to the health concerns created by Coronavirus we are offering personal 1-1 online video walkthough tours where possible.




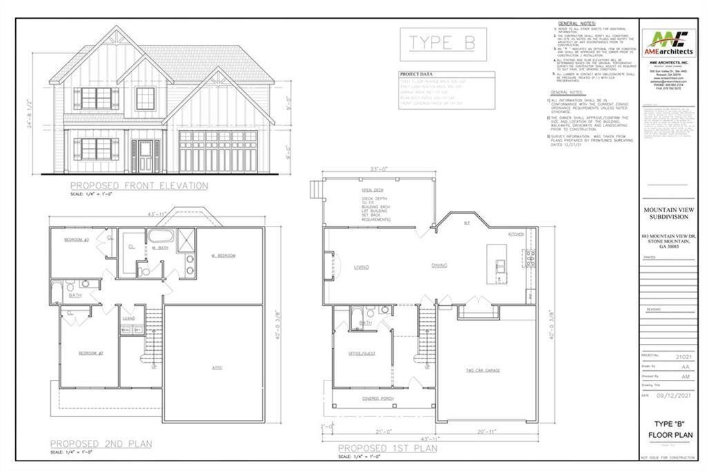
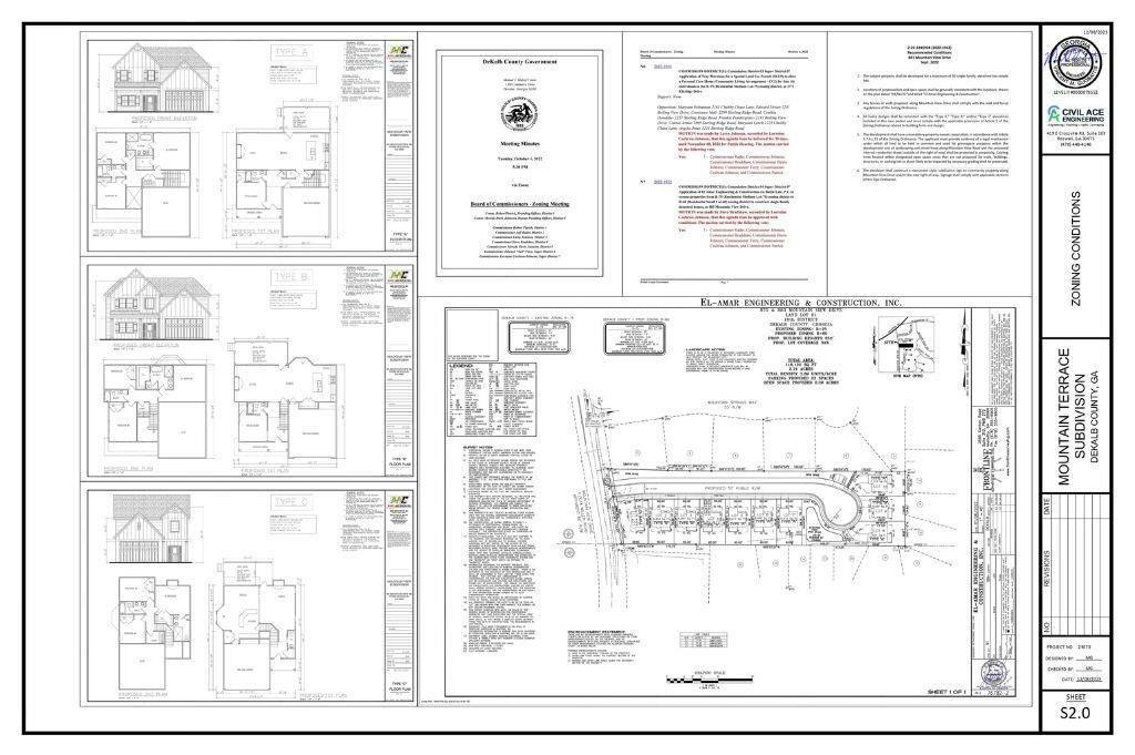
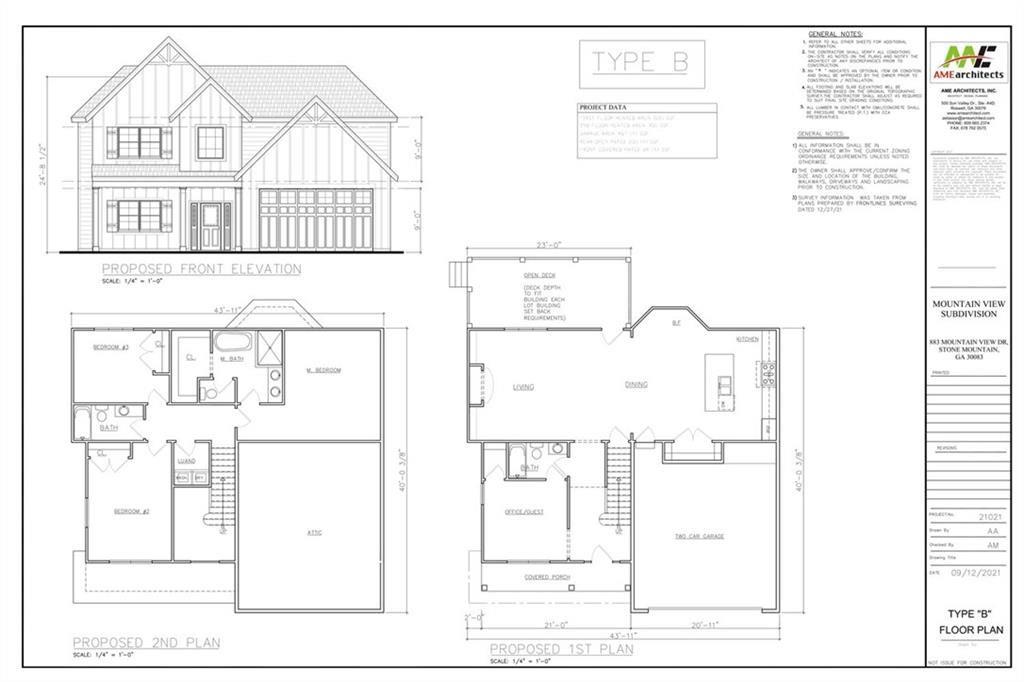
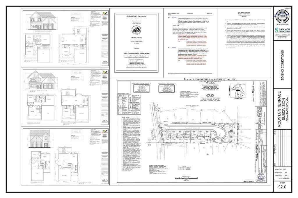
This is the development opportunity serious builders compete for. Located just minutes from Memorial Drive and major retail corridors, this prime 2.71-acre tract is fully approved for a 9-home gated subdivision and positioned in a market where new construction, within a 2-mile radius, is selling between $450K–$500K. This creates an excellent environment for builders seeking steady buyer demand and strong resale values. The property includes a total of **2.71 acres, comprising the main parcel at 883 Mountain View Dr and an adjacent 0.53 portion at 875 Mountain View Dr. All acreage is combined into one offering for a 9-home approved subdivision. The site offers both privacy and desirability for future homeowners. All easements have already been recorded with DeKalb County, ensuring clear development and utility placement. Convenience is unbeatable — the property is approximately 3.5 miles from Walmart, Publix, and The Home Depot, offering quick access to daily essentials and major building supplies. Recently rezoned from R75 to R60, the property includes a comprehensive development package, allowing builders to move efficiently through the next steps: Full Survey Legal Description Three Architectural Home Plans (A, B & C) Sewer Easement Documentation Rezoning Approval Ready for Land Disturbance Permit (LDP) Submission All development documents are available for immediate review, ensuring a seamless due diligence process. With buildable land becoming increasingly scarce and new construction sales in the area remaining consistently strong, this is a rare opportunity to secure a near–shovel-ready project in a high-demand pocket of Stone Mountain. Opportunities like this do not last. Bring your builder and break ground with confidence.
| 3 weeks ago | Listing first seen on site | |
| 3 weeks ago | Listing updated with changes from the MLS® |
Listings identified with the FMLS IDX logo come from FMLS and are held by brokerage firms other than the owner of this website and the listing brokerage is identified in any listing details. Information is deemed reliable but is not guaranteed. If you believe any FMLS listing contains material that infringes your copyrighted work, please click here to review our DMCA policy and learn how to submit a takedown request.
© 2017-2025 First Multiple Listing Service, Inc.

Did you know? You can invite friends and family to your search. They can join your search, rate and discuss listings with you.